Dynamic
風米動態
低造價照樣能出好效果 基輔超炫活力空間很“儉約”
Pepeliaev Group(湃勃)
地址:烏克蘭 基輔
面積:504 平方米
時間:2019年
攝影:Yevhenii Avramenko
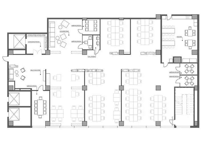
整個辦公室裝修布局建立在開放辦公的概念基礎之上,讓每一個功能空間都能作為一個獨立的有機體進行自由重組和重新定位。

縱向型的空間構成,每一個工作空間猶如一粒粒珠子被串聯在中軸線上,這些開放工作區沿窗而設,最大化引入自然光線,同時各區域又可以任意變化。在功能規劃上設計了迎賓區、休息區、各種大小的會議室和自助餐廳。
南寧風米裝飾設計工程有限公司創始于2009年。專業提供中高端南寧辦公室裝修,寫字樓裝修,廠房裝修的設計以及配套施工服務。風米以高品質的原創設計為核心競爭力,以規范、誠信、高效的整體服務為重要保障。贏得了眾多知名企業的青睞,業務蒸蒸日上。目前已崛起成為廣西辦公商業空間設計領域的中堅力量。
企業簡介
Philosophy
-
南寧風米裝飾設計工程有限公司創始于2009年。專業提供中高端辦公商業空間的完整方案設計以及配套施工服務。風米以高品質的原創設計為核心競爭力,以規范、誠信、高效的整體服務為重要保障。贏得了眾多知名企業的青睞,業務蒸蒸日上。目前已崛起成為廣西辦公商業空間設計領域的中堅力量。
風米服務理念:為客戶提供超越期望的服務,不辱使命。
風米競爭格言:不畏強手,以專業贏市場。
設計理念:只做不一樣的設計。
施工承諾:費用透明,標準化管理,高品質交付

















