Dynamic
風米動態
L'OREAL歐萊雅莫斯科辦公設計 | IND Architects
地址:俄羅斯 莫斯科
面積:1,200 平方米
時間:2019年
標簽:美容,黑白時尚、幾何形式、金色光圈、圓形多元空間、螺旋狀入
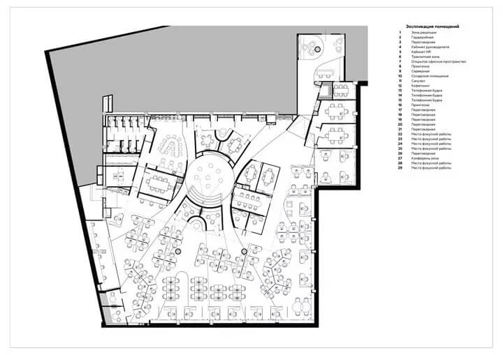
歐萊雅莫斯科辦公室設計以兩大特色去映射該美容公司的特性和相關趨勢。首先,它是一個具有明顯感知力的室內空間,每一個細節都在表明它與美容行業絲絲相扣;其次,內部組織規劃讓業務流程在不知不覺中順利而高效地運行。功能與美感在這里共融共生。
計概念的靈感來源于公司的名稱——L'or(法語,意為gold金色)和aurele(法語,意為halo光環)。“金色光環”的品牌寓意成為整個空間形式的構造背景,整個辦公室的主動線也圍繞著一個圓環來規劃。這個中心圓環被定義為一個明亮的核心空間,形成一個中心會議大廳,周邊分布著或開放或封閉的會議區。
南寧風米裝飾設計工程有限公司創始于2009年。專業提供中高端南寧辦公室裝修,寫字樓裝修,廠房裝修的設計以及配套施工服務。風米以高品質的原創設計為核心競爭力,以規范、誠信、高效的整體服務為重要保障。贏得了眾多知名企業的青睞,業務蒸蒸日上。目前已崛起成為廣西辦公商業空間設計領域的中堅力量。
企業簡介
Philosophy
-
南寧風米裝飾設計工程有限公司創始于2009年。專業提供中高端辦公商業空間的完整方案設計以及配套施工服務。風米以高品質的原創設計為核心競爭力,以規范、誠信、高效的整體服務為重要保障。贏得了眾多知名企業的青睞,業務蒸蒸日上。目前已崛起成為廣西辦公商業空間設計領域的中堅力量。
風米服務理念:為客戶提供超越期望的服務,不辱使命。
風米競爭格言:不畏強手,以專業贏市場。
設計理念:只做不一樣的設計。
施工承諾:費用透明,標準化管理,高品質交付




















