風米動態
一亮相就知道有沒有! 雄安市民服務中心OFFICEZIP
生態辦公,智享綠意
“建筑就像一本打開的書,
從中你能看到一座城市的抱負。”
入口標識
“不建高樓大廈,不建水泥森林,不建玻璃幕墻。”這是國家級新區雄安對城市建設的美好希冀,而作為中國雄安集團投資的第一個高起點規劃、高標準建設的城建項目——雄安市民服務中心,承載著成為未來雄安締造智慧綠色城市的示范樣板的使命。
建筑外立面
建筑外立面
在雄安市民服務中心這塊占地面積廣達9.96萬平方米的新生沃土上,有序林立著公共服務區、行政服務區、生活服務區、入駐企業辦公區四大建筑群落。而當落眼于其中入駐企業辦公建筑群落中的B棟Officezip時,不禁感受到從內而外綻放著的生態綠意。
一層共享前臺背景
一層共享前臺
SUPER TOMATO受中海地產的委托,獨立承接了這棟面積為3775.36平米的聯合辦公區域的室內設計,此篇是超級番茄對該項目設計過程的一些思路梳理和還原。
一層共享洽談區
一層共享卡座區
首先在設計手法上我們延續了建筑師的設計語言,同時圍繞整個項目的定位綠色、現代與智慧的理念開展了深層的設計探索。
一層共享景觀走廊
一層共享景觀走廊
多功能空間劃分,突破傳統界限深層互動
“當人們的空間被外界物質擠壓的時候,很多本質的東西就悄然失去了。倘若想要得到更多的舒適空間和更高效率的空間利用,就需要摒棄虛假無用的東西,努力存留那些觸及真實本質的事物。”
一層共享景觀走廊
一層共享休息區
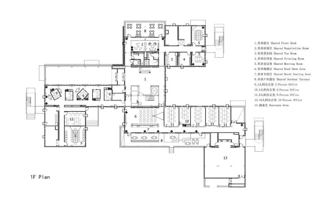
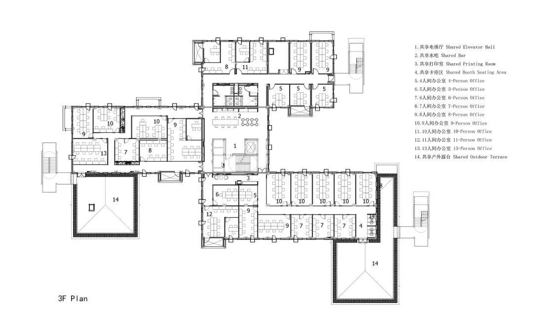
在空間劃分上,我們遵循城市綠色生態美學,充分利用創新技術進行模塊化設計,將裝配式建造、節能低碳等許多新理念應用到整個空間中去,將整體空間劃分成商務區、辦公區和休閑區,具體到擁有獨立辦公室65個,辦公工位464個,會議室5個,以及水吧、咖啡廳、休息艙、茶室、電話亭等共享區,我們想要脫離傳統辦公空間的單調枯燥,讓一站式的休閑服務和辦公完美結合,觸達現代人內心的深層需求,從而使整體設計方案在保持高品質的同時做到高效、低成本。
二層走廊
二層走廊
讓綠意安放,于無聲處
要打造綠色自然的物質家園絕非簡而化之將自然要素悉數引入室內。我們想要人們感受到的是“一粒沙中見世界,一朵花中見春天”的純真質樸,讓綠色以更舒適更柔和的展現形式給予感官沉浸式體驗。
二層走廊
二層走廊
我們選擇在溫潤的木質和清冷簡約的現代工業風兩個主打風格中做嵌入融合,將形色各異的綠植以碎片化環繞的方式呈現,讓人有種綠意悄然邂逅的驚喜。于是設計了以兩人位為一組的多個盒子空間,讓綠植棲息環繞,使每個組團都能隨時與自然互動,汲取靈感,巧妙形成建筑中的小建筑。
二層走廊
二層共享電梯廳
至于盒子以外的空間,我們想凝聚更多的人文藝術氣息,選擇較多地去鋪陳展示各種抽象的藝術線條和畫作,同時為了不失去生活氣息,各個角落選擇顏色比較跳躍的家居什物,讓它作為一個流動的戶外廣場,讓人可以自在穿行其中,偶爾停駐觀察,經得住人聲鼎沸的喧擾,亦能提供心靈靜憩的安寧。在這里,大家認真辦公、生活、盡情交流、分享,它就是一個安放綠意,有極高包容度的公共空間。
二層共享水吧
三層走廊
徜徉綠林,智能科技如影隨形
在呈現綠色生態之外,我們想要現代科技隨處可感觸可體驗,所以在整個辦公區域內,融入了人臉通行、數字化管理、辦公會議共享預定以及會議無線投屏等功能,再加上手機搖一搖的開門技術,讓人和空間時刻都能進行智能互動。
三層共享水吧
我們認為最好的綠色發展,是在自然元素融合的基礎上,緊隨科技節能的腳步,讓人與自然互動共享空間福祉,所以在參與雄安新區建設中始終在努力呈現,我們想讓室內成為建筑的靈魂所在。
三層共享區域
一層平面圖
二層平面圖
三層平面圖
項目名稱:雄安市民服務中心OFFICEZIP
項目位置:中國河北省雄安新區容城縣奧威東路雄安市民服務中心
項目類型:辦公空間
室內設計:超級番茄設計顧問有限公司
建筑設計:中國建筑設計研究院
軟裝采購:杰恩設計
建筑面積:3225.0平方米
項目年份:2018
委托方:河北雄安市民服務中心有限公司、雄安中海發展有限公司
施工方:中建三局集團有限公司,中國建筑裝飾集團有限公司,中建深圳裝飾有限公司
主要材料:纖維水泥板(埃特尼特佳美HD板)、PVC地板(大巨龍同質透心系列)、金屬網。
攝影師:羅湘林
南寧風米裝飾設計工程有限公司創始于2009年。專業提供中高端南寧辦公室裝修,寫字樓裝修,廠房裝修的設計以及配套施工服務。風米以高品質的原創設計為核心競爭力,以規范、誠信、高效的整體服務為重要保障。贏得了眾多知名企業的青睞,業務蒸蒸日上。目前已崛起成為廣西辦公商業空間設計領域的中堅力量。
企業簡介
-
南寧風米裝飾設計工程有限公司創始于2009年。專業提供中高端辦公商業空間的完整方案設計以及配套施工服務。風米以高品質的原創設計為核心競爭力,以規范、誠信、高效的整體服務為重要保障。贏得了眾多知名企業的青睞,業務蒸蒸日上。目前已崛起成為廣西辦公商業空間設計領域的中堅力量。
風米服務理念:為客戶提供超越期望的服務,不辱使命。
風米競爭格言:不畏強手,以專業贏市場。
設計理念:只做不一樣的設計。
施工承諾:費用透明,標準化管理,高品質交付























