風米動態
重回甲第官宅文化 傳承千年禮序——武漢璞樾門第售樓處| 壹舍方磊新作
湖北是荊楚文化的發祥地,其省會城市武漢在近現代史上,曾一度成為中國的政治、經濟和文化中心,富賈豪紳、青年才俊聽風而來,求官者、為仕者紛涌至此。官宅大院隨之冒頭,自成一景。且作為建筑文化傳承下來,禮制模式及整體形態的規制都彰顯著身份的尊崇和威嚴。
武漢璞樾門第售樓處坐落于光谷核心,其室內空間及軟裝設計均由壹舍團隊擔綱負責。
“受武漢地域背景啟發,挖掘到甲第文化與當地的年輕精英們追求夢想、拼搏上進的至臻精神不謀而合。基于對歷史、都市的尊重,我們營造出頗具氣派格調的官邸大宅,以審慎的視角探討并解讀當今時代、地域與文脈的關聯性。”設計師方磊表示。
售樓處的室內設計延續其建筑風格,以簡潔精煉的手法構筑大塊面空間輪廓。室內以傳統官宅形制精髓為基礎,沿襲層層遞進的節奏,結合高級灰、中國紅、金屬色的主基調,用自由流暢的現代方式呈現極具雅致韻味的場景氛圍,將厚重的武漢甲第官宅文化因地制宜地展現在眾人面前。
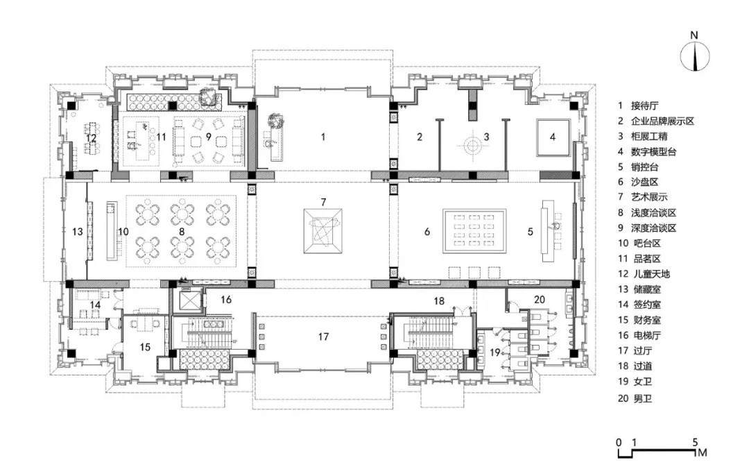
踏入第一重空間的迎賓前廳,大堂挑空高7.7米,氣勢恢宏。“甲第者以禮為官也,不學禮,無以立。”為此,迎賓區的設計干練簡潔,以飽含的禮儀序列拉開整個空間的序幕。
接待臺后方屏風采用香檳金木飾面打底,以浮雕般的技法將顏料手工涂抹之上,勾勒出亭臺樓閣、門坊巷院、宅第集群。臺面上的橘紅插花,講究枝葉的旁逸斜出,保留線條美與自然美,平添了一種沉靜之氣,將東方之意引入更悠遠的境地。
內部橫軸與縱軸兩條動線交叉,劃分出方正規整,卻又充滿開放互動式的功能分區,這也是官宅建筑的題中之義。縱軸動線上的兩側墻體向中心處略作延伸,上方木格柵內包裹燈箱一體貫穿而成,下方則以金屬屏風陣列來開啟兩端分區的儀式感。在燈箱、屏風的逐層隱退與縮進中,打破了空間的單調與空曠,立面視覺更加莊重大氣。
最中心處的藝術裝置,同樣提取甲第官宅設計原型,共計7500根透明細線、20260顆不同形態大小的水晶顆粒串聯而成。通透閃爍著藝術和文化的智慧之光,勾畫出屋檐的靈動巧妙,凸顯古代建筑的柔美,也體現出甲第官宅的震撼氣勢。
藝術裝置的頂面與底座皆源于印章的提取與演繹,內凹為陰、外凸為陽,陰陽互補、平衡相生,且彼此均呼應吻合。上下為實,中間則虛,若隱若現,似透非透。
后廳處二樓的空中連廊又和諧充當了背景的一部分,讓迎賓區至后庭院的穿梭中承載了更豐富的元素,同時兼顧了功用與視覺體驗。
印、屏、紋可謂官宅元素的重要載體,在中國文人的生活中占據著重要的地位,彰身份,寓雅趣,更是“第”之名的具象化表現。沙盤區則是這三項元素最有力的映射與例證。木格柵因勢延續至此,銷控臺主背景及金屬陣列屏風則滿載印章紋案,以純粹統一的手法、元素來塑造其干練有序的風貌。
此外,八角亭作為官宅的建筑小品,自然也是不可或缺。設計師將黃鶴樓前的八角亭植入室內,運用3D打印技術,表面作特殊的工藝處理,實現古銅金屬材質的表達,詮釋出現代與傳統、傳承與發展的融合。
淺度洽談區,左右對稱,尊崇禮制,門洞與展示格架大小相同且彼此對應,頂部同樣為印章輪廓組合而成,讓水吧臺背景退到最末端,譜寫一場深與淺、光與暗、近和遠的和諧奏鳴曲。在陳設上則精心擷取了具有通透質感的琉璃,古典的造型,質樸的色澤,都恰到好處。
“琉璃是古代傳統文化與現代藝術的結合,其流光溢彩、變化瑰麗,是東方人精致、細膩、含蓄的體現,更是思想情感與藝術的融會貫通。”設計師方磊如此評述道。
緊鄰淺度洽談區的一側,設立深度洽談區與品茗區,在半開敞半私密的復合型布局中,木格柵材質以橫豎并存的姿態出現,更具韻律節奏。此外還引入園林造景技法,虛透中亦可一窺山石松林,領略到“窗前有風景、心中有山水、茶中有天地”。
屏風上“高山流水遇知音”,宛如在娓娓道來伯牙子期當年的故事。收藏級裝幀叢書,代表禮儀身份的印章,抱枕上的祥云、山水刺繡,細致精巧的陳設烘托出文人雅趣,同時營造了沉穩靜逸的氛圍,堅定地表達了現代東方的美學態度。
品茗區,將東方人的情趣與當代設計理念相結合,呈現自成一格的空靈之所。在這里休憩品茶,似乎時間也會停駐。
洽談區另一側的端景藝術畫與立面背景融為一體,畫作上由硬紙板雕刻出來的官椅層層疊加,以自由不羈的位置關系增添趣味。
后廳兩端藝術裝置呈矩陣對稱分布,延續了古老東方的嚴肅審美。在材質多元的形態下,又極具層次變化。
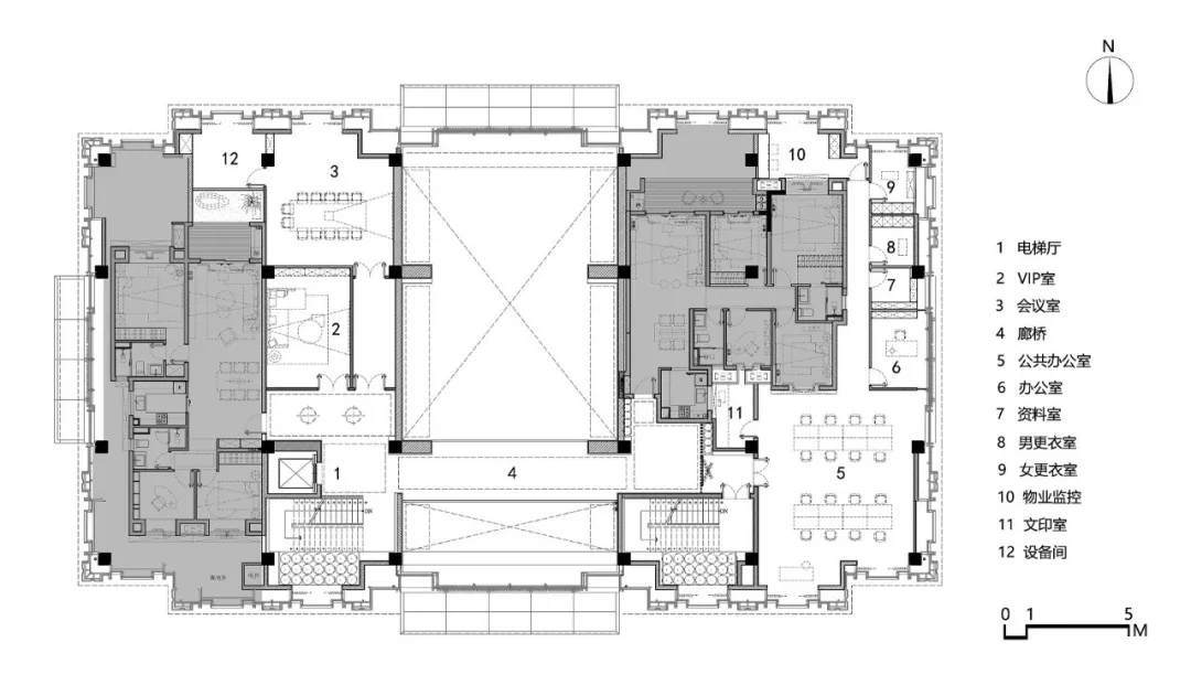
樓梯作為一層和二層VIP室的重要連接,強調建筑感,在一隅打造景觀顯露禪意,通過木飾面包裹更具整體性,簡潔有序,又釋放古雅風韻。
考慮到實用性與安全性,空中連廊處以玻璃扶手作為有力支撐,外圍予以木格柵裝飾,整體用色克制統一,在極具秩序感的光影里,彰顯了設計師一貫簡約純粹的風格。
武漢璞樾門第售樓處,致敬千年甲第世家的居住文明,在空間的起承轉合中訴說東方人文的循序漸進、張弛有道,強調規矩與禮序。它讓傳統的文化在這片創新的熱土上又一次迸發光彩,于城市繁華處,再續氣度風雅!
△ 1F平面圖
△ 2F平面圖
項目名稱 | 璞樾門第售樓處裝修
項目地點 | 湖北省 武漢光谷
項目面積 | 1400m²
設計公司 | ONE HOUSE DESIGN 壹舍設計
設計主創 | 方磊
參與設計 | 李煌、樊錢中
視覺陳列 | 李文婷、潘妍思、程慧
項目攝影 | 釋象萬合
南寧風米裝飾設計工程有限公司創始于2009年。專業提供中高端南寧辦公室裝修,寫字樓裝修,南寧廠房裝修的設計以及配套施工服務。風米以高品質的原創設計為核心競爭力,以規范、誠信、高效的整體服務為重要保障。贏得了眾多知名企業的青睞,業務蒸蒸日上。目前已崛起成為廣西辦公商業空間設計領域的中堅力量。
企業簡介
-
南寧風米裝飾設計工程有限公司創始于2009年。專業提供中高端辦公商業空間的完整方案設計以及配套施工服務。風米以高品質的原創設計為核心競爭力,以規范、誠信、高效的整體服務為重要保障。贏得了眾多知名企業的青睞,業務蒸蒸日上。目前已崛起成為廣西辦公商業空間設計領域的中堅力量。
風米服務理念:為客戶提供超越期望的服務,不辱使命。
風米競爭格言:不畏強手,以專業贏市場。
設計理念:只做不一樣的設計。
施工承諾:費用透明,標準化管理,高品質交付



























