風米動態
小型公共建筑設計:廣州保利花城紀社區中心|間筑設計
保利從化社區中心位于廣州市從化區。項目初始,間筑設計的建筑師認為,此項目的優勢在于建筑與室內方案皆由一家事務所來完成,所以不應將建筑內與外切割開來進行設計,而是試圖整體打造一個可反映當地建筑特征,并與當地文化緊密相連的整體空間。以此為出發點,在對當地環境和項目特性進行仔細分析后,建筑師從當地傳統民居圍龍屋的概念及形態上汲取到了靈感。
圍龍屋又名龍屋,屬于客家建筑的分支,大多坐落于廣東省,是一種常見的大型傳統聚合住宅。它起源于中原四合院建筑。秦朝之后,中原多次戰亂,人們為躲避戰亂向南遷徙,建造家園。圍龍屋以夯土作高墻圍合包圍正屋,形成多個同心半圓體建筑群,并具有鮮明的功能劃分。立面上只設計了一個入口并且在一層沒有朝外的窗戶從而起到防御異族的作用。但隨著時間的推移,客家人漸漸卸下防御心,帶著開放的態度和當地文化相融合,形成了新的嶺南客家文化和建筑風格。
在這個項目中,建筑師嘗試用現代的理念、結構和材料來打造由封閉走向開放融合的客家建筑,創造出傳統文化和現代觀念相結合的建筑形態。如同客家建筑大多坐落于山水樹林間,這座雙層建筑與周圍自然景觀也保持著親密聯系。剪影式的三角形頂棚如同山的影子般遮蓋著地面;而支撐著整個三角屋頂的金屬柱廊宛若茂密的樹林,與戶外的樹木連成一片;環繞場地的水景弱化了由剛性的幾何平面帶來的疏離感,大面積的玻璃的應用,引入周圍綠色景觀,重新定義了建筑與周邊的環境關系。莊重但不厚重的頂棚,高聳錯落的柱廊,通透的落地玻璃,山與樹與水。
同時,整個建筑運用了現代構圖的方式,突破了傳統對稱的客家建筑特征,將多個同心半圓演化成多個相似三角形,構成了不對稱的幾何空間;巧妙地通過線與面的緩急對比加強了視覺上的層次感,以不同的設計手法,在保持建筑與外部交匯貫通的關系的同時,強化了建筑的縱深感。
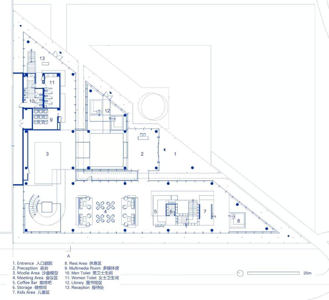
懸挑的頂棚引導游客進入建筑內部,映入眼簾的是錯落分布著木質懸浮盒子的雙層十米挑高空間。同時大面積的玻璃幕墻營造的通透感,使得無論哪個方位,都具有內外空間相通的視覺體驗。隱藏在水池中的下沉休息區,懸掛在天花上的木隔柵,穿插在旋轉樓梯和書架之間的休閑洽談區,還有較為隱蔽私密的二層貴賓室,多個不同功能的空間仿佛彼此獨立,卻又渾然一體。
下沉式休息區由外部滲透進來的水體環繞包圍,似客家建筑中的天井,收集儲蓄疏通雨水,淺水鏡面不僅倒映出光影的變化,也將窗外的枝繁葉茂引入室內,營造出人與自然融于一體的環境。
為了適應當地氣候,建筑師在南翼雙層通高的開敞空間內設置了懸垂的木隔柵,可以達到舒適的遮陽效果,并且具有空間劃分的功能。公共洽談區,雙層書架,咖啡吧就位于此。平行垂落且錯落的木隔柵打破了安靜的空間氛圍,和室外的廊柱相互呼應的同時,密布的木隔柵也自身形成體量與二層的功能體塊虛實相生。
主要的休閑洽談區域通過強調垂直上的縱深感和透明度,營造出一種平穩而開放的空間氛圍。與洽談區相鄰的咖啡吧坐落于一個巨大的木質書架旁,書架隨著木飾樓梯一直延伸至二層,繼而連接起相對僻靜私密的閱讀空間。
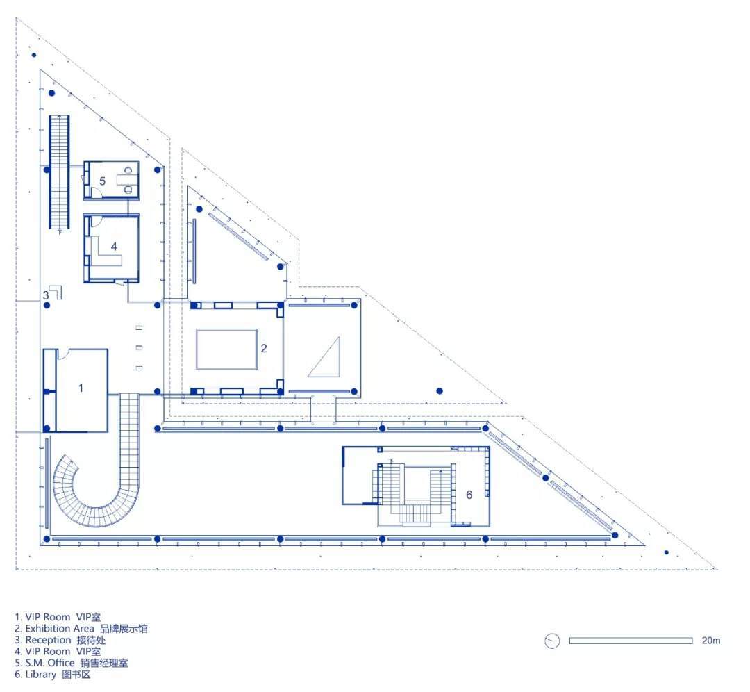
在直線構成的空間中,設計師巧妙地設置了一個旋轉樓梯,經過鋼結構精確的計算,運用了非柱支撐的結構連接于兩層間。游客可以通過此旋轉樓梯到達二樓的貴賓室和辦公室,透過具有框景效果房間窗戶向外望出,看到室內各部的同時亦可以觀賞周邊風景。
通過對建筑與室內整體考慮、通篇布局,傳統的客家村落文化在現代的設計語言中再次被講述出來,游走于整個建筑之中,讓人體驗到的是充滿流動性的空間感受。
南寧風米裝飾設計工程有限公司創始于2009年。專業提供中高端南寧辦公室裝修,寫字樓裝修,南寧廠房裝修的設計以及配套施工服務。風米以高品質的原創設計為核心競爭力,以規范、誠信、高效的整體服務為重要保障。贏得了眾多知名企業的青睞,業務蒸蒸日上。目前已崛起成為廣西辦公商業空間設計領域的中堅力量。
企業簡介
-
南寧風米裝飾設計工程有限公司創始于2009年。專業提供中高端辦公商業空間的完整方案設計以及配套施工服務。風米以高品質的原創設計為核心競爭力,以規范、誠信、高效的整體服務為重要保障。贏得了眾多知名企業的青睞,業務蒸蒸日上。目前已崛起成為廣西辦公商業空間設計領域的中堅力量。
風米服務理念:為客戶提供超越期望的服務,不辱使命。
風米競爭格言:不畏強手,以專業贏市場。
設計理念:只做不一樣的設計。
施工承諾:費用透明,標準化管理,高品質交付


























