風米動態
理性的空間秩序 融創中國集團辦公總部 |艾迪爾
融創中國控股有限公司(01918.HK)是香港聯交所主板上市企業。公司成立于2003年,以“至臻,致遠”為品牌理念,致力于通過高品質的產品與服務,整合高端居住、文旅、文化、商業配套等資源,為中國家庭提供美好生活的完整解決方案。其中國辦公總部新址位于北京東直門北大街8號。辦公新址除了簡約現代化的外觀,實用的功能分區,更綠色環保,更加智能,人性,純粹,細節之處盡顯溫暖。
大堂—自然通透的園林式空間
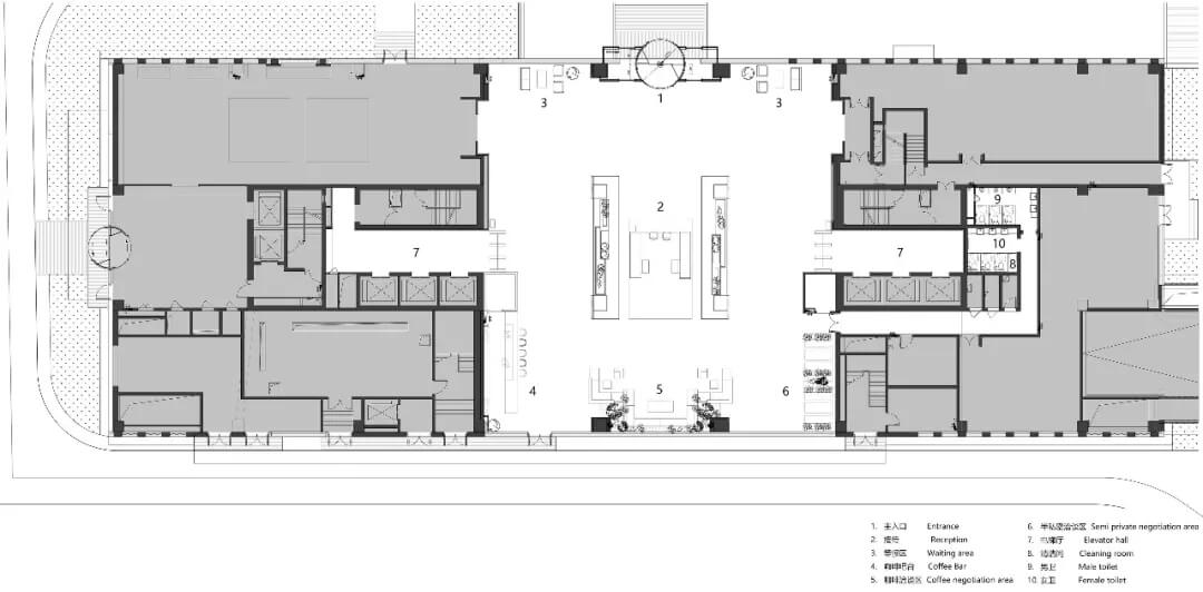
大堂是開放,通透,自然的園林式空間,自成一片天地。踏入大堂即可看到前廳接待島,方形四面通透的造型,嚴謹不失靈活,結合流動水景和盆景,營造了生態的,四季怡情的綠色辦公。電梯廳出入口在接待島兩側,實現快速集散,避免上下班高峰期等候擁堵??Х鹊群騾^玻璃窗形成框景,把室外花園內的四季變幻,自然元素都納入到室內來,形成情景共融。
1F平面圖
大堂接待島分析圖
設計師通過空間布局,材料選用等營造出大堂沉靜務實、理性的空間氛圍,咖啡,水聲,盆景,窗外的花園,以及往來的員工,客戶和行人賦予這里靈魂和氣息,使整個大堂充滿各種可能性。
在空間規劃和功能布局上,兩側光線條件良好的區域設置開敞辦公區;核心筒區增設存儲空間、電話間,洽談空間,會議室,滿足各種洽談會議需求;電梯集散口設置樓梯吹拔等候區、茶水區、景觀小品等開放共享和展示空間;采光較弱的中間區域,插入玻璃盒子做會議室。整個平面布局,在原建筑條件基礎上,融合融創需求,級級遞進,相互銜接。
5F平面及立面圖
辦公更加靈活,營造景觀辦公氛圍
4-11層打通局部樓板增設步梯,增加吹拔空間,巧妙的貫通上下層空間,加速空氣流通,使空間更加靈動透氣,減少空調使用量,同時也使各部門聯系更便捷,溝通更高效 。
樓梯吹拔空間立面圖
步梯采用極簡折轉的造型和玻璃材質,每層的樓梯區結合景觀設計,聯通電梯入口,茶水間,設置景觀小品,圖書閱讀空間,洽談卡座,等候區等,形成辦公空間的共享交流區和創意生活區,打造有活力,展示性強的員工休閑活動區。
辦公更加生態,引導健康的辦公行為方式
該項目遵循“以人為本”的設計法則,按照融創人行業屬性及辦公習慣,員工活動步行半徑反復推演出工位組團尺寸,過道尺寸,討論區位置,電話間位置等,達到順手可儲物收納,辦公互不干擾的高效整潔品質,倡導健康良好的辦公行為習慣,具體體現在:
1. 在開敞辦公區內設置站立辦公和討論區,在該區域內配置景觀綠植;
2. 從人體工程學角度,選擇多尺寸的舒適桌椅;
3. 實時監測辦公空間空氣質量。垂直增設的步梯與新風系統結合,使內部空氣流通好,減少空調使用量,使員工更接觸自然,身心更健康。
4. 倡導健康的生活方式,鼓勵員工進行健康運動,每層的步梯及十二層的健身房是員工工作之余的運動場所。
站立辦公&討論區
健身房
全智能化管理的會議系統
設計師綜合融創的不同會議使用訴求以及原建筑結構,在空間布局上,打造核心筒混合會議帶,不同大小、不同形式的會議空間嵌套在每層開放辦公區的不同位置,滿足多元化會議需求;卡座,開敞洽談區,休閑洽談區滿足互動交流,頭腦風暴式會議需求。多層次多功能的交流會議由智能系統高效管理,體現融創開放、包容的企業文化。
休閑洽談區
VIP會議室及私密電話亭
作為集團總部綜合培訓及會議區,設計師在十三層集中布局大培訓室,商學院會議室,商學院自由活動區等規模不等的會議空間,滿足公司層面對會議,活動、共享空間的多元化需求。
融創學院培訓室及自由活動空間
空中花園辦公區
八層原場地建筑南側是一座覆土花園平臺,出電梯廳南側是簡潔寬敞的接待廳,空中花園相對的兩側分別布局兩間辦公室,為了使戶外的自然元素與室內連接,設計師把朝花園一側建筑幕墻改為大推拉玻璃移門,使視野更開闊,花園盡收眼底,也可隨時出入體驗,加強了與自然的聯系。
/
項目名稱:融創中國集團辦公總部
項目地址:北京市東城區東直門北大街8號
項目面積:24000平方米
竣工時間:2019年08月
設計單位:艾迪爾IDEAL
設計團隊:王文惠,羅勁,李雪梅,姜云龍,李輝
機電設計:黃桂安,董伶,李佳
項目攝影:銳景攝影
南寧風米裝飾設計工程有限公司創始于2009年。專業提供中高端南寧辦公室裝修,寫字樓裝修,南寧廠房裝修的設計以及配套施工服務。風米以高品質的原創設計為核心競爭力,以規范、誠信、高效的整體服務為重要保障。贏得了眾多知名企業的青睞,業務蒸蒸日上。目前已崛起成為廣西辦公商業空間設計領域的中堅力量。
企業簡介
-
南寧風米裝飾設計工程有限公司創始于2009年。專業提供中高端辦公商業空間的完整方案設計以及配套施工服務。風米以高品質的原創設計為核心競爭力,以規范、誠信、高效的整體服務為重要保障。贏得了眾多知名企業的青睞,業務蒸蒸日上。目前已崛起成為廣西辦公商業空間設計領域的中堅力量。
風米服務理念:為客戶提供超越期望的服務,不辱使命。
風米競爭格言:不畏強手,以專業贏市場。
設計理念:只做不一樣的設計。
施工承諾:費用透明,標準化管理,高品質交付
























