隱逸在上海泰安路頂級老洋房的藝術辦公空間|邵莉
項目位于原法租界泰安路衛樂園,是一幢坐落于歷史保護建筑群小區內的建筑,本身具有極強的可塑性,改造過程中既要做到對歷史建筑的保護,又要加以對空間和功能的重構。


別墅建造時間較晚,大屋檐,斜角坡屋頂,圓窗,立面小屋頂,唯伊匯設計團隊對項目從建筑、園林到室內和軟裝做了整體改造。
建筑上保留其原北美風格的同時,植入現代化語言,拆除所有建筑裝飾面,重新選材及搭配,追求簡化,同時精心雕塑園林打造詩意生活情境,使建筑和風景高度融合。景觀美學方面,優雅的東方園林搭配西式別墅,以現代眼光勾勒傳統文化魅力,賦予空間更多的力量。

室內為符合當代辦公需求,定位現代簡約時尚的風格,白色和黑色的主色調,中間銜接色的灰色調,將一至三樓空間一氣呵成,沒有多余的修飾,打造出一個宜居、充滿藝術氣質的住宅式辦公環境。

建筑本身原有的采光條件極好,以玻璃隔墻形式,讓整個空間在動線功能分區上變得更加開放、自由,同時又相互聯結,彼此融合。

入門位置非常巧妙,喇叭形設計的入口符合中國人風水之說。門與室內地板材質相宜呼應,斑駁的浮光掠影中,散發著獨特而又低調的木質氣息。



深色接待臺在白色的背景下顯得尤為安靜端莊。透過隔墻映入眼簾是會客區的壁爐一角、茶水間及小會議室。大面積白色混油木飾面讓空間擁有獨特的高貴氣質,突顯出集團年輕、激進向上的愿景。




翡翠林梢青黛山,碧紗窗外水挪藍,淺色的空間融入灰綠色的軟裝,建筑與室內的氣質彌漫開來。定制的麂皮絨沙發,鏡面金屬和白色石材拼接而成的茶幾,藝術感彰顯無遺。黑色漸變玻璃隔墻,既是背景墻又是空間顏色最深的立面,讓茶水間在保持通透的同時又保證會客區客人的私密性。壁爐,火焰,回歸自然的同時讓氛圍變得輕緩,香茗與咖啡,讓辦公空間散發著靈魂的香氣。


于“千禧世代”而言,辦公空間充滿著交流和碰撞,這一隅天地,景觀吧臺、小型會議區、工作區,功能與空間劃分清晰,而最是那一抹白色色調,暖意宜人。


紅色吧椅賦予了整個空間驚喜感與生命力,小會議室更多承載著員工內部的工作討論及小型會議的功能,整面的白板玻璃裝飾與實用功能兼具。



二樓經理辦公室家具皆為量身定制,將家具安排在露臺景觀的位置,整面書架設計,功能強大。開放式員工辦公空間,特地在端頭的位置設計弧形的位置,形成更加靈活、互動的辦公空間。因結構問題,部分墻面沒法拆除,但恰恰稱為“屏風擔當”,增加員工的私密性。

日由山頂下,暮自樹梢生。啼喚來何處,百巢歸鳥鳴,黃昏下的衛樂園,正散發著只屬于她的芬芳。




立體感十足的幾何屋頂,再現ST. JEROME IN HIS STUDY畫中的空間關系以及康的美學理念,賦予了整棟建筑莊嚴磅礴之美。多個不同的洽談和展示區域,與空間立體結構之間形成辯證對話,讓辦公多了一份超脫于日常的神圣之美。




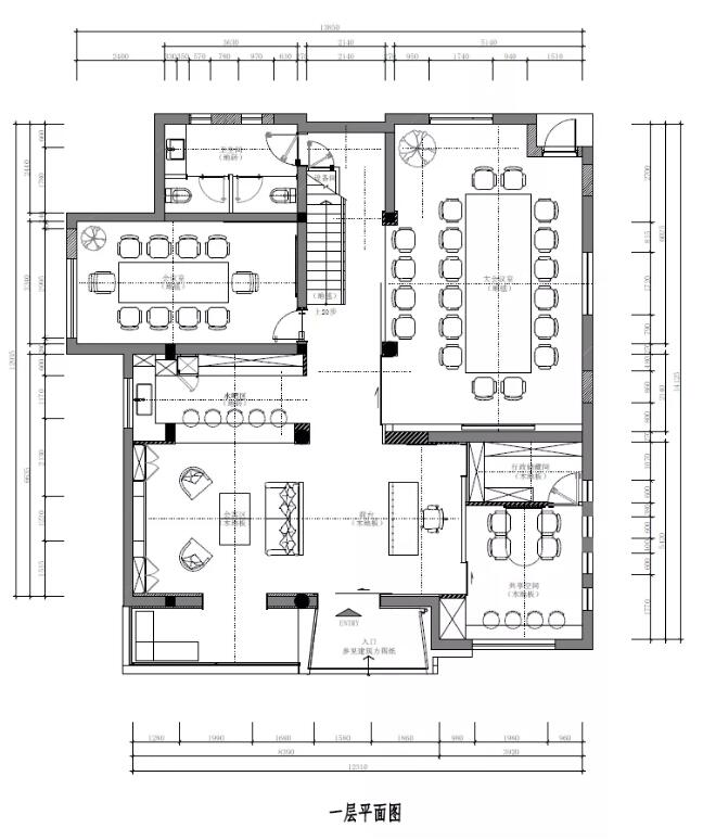
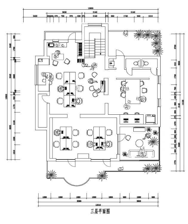
1-3層平面圖

邵莉出生成長于上海,對于設計,她有自己的設計語言,能夠很好地理解和詮釋設計理念。致力于設計行業以來,主要涉及酒店和高端住宅以及整體改造翻新等項目。涉及的其他范圍也包括軟裝陳列、藝術品設計等領域。她極富創意,且見識廣博,執著于精致和完美,給客戶創造一個充滿藝術及雅致且富有人情味的設計作品。
年度TOP100最具國際影響力創新設計師大獎
南寧風米裝飾設計工程有限公司創始于2009年。專業提供中高端南寧辦公室裝修,寫字樓裝修,南寧廠房裝修的設計以及配套施工服務。風米以高品質的原創設計為核心競爭力,以規范、誠信、高效的整體服務為重要保障。贏得了眾多知名企業的青睞,業務蒸蒸日上。目前已崛起成為廣西辦公商業空間設計領域的中堅力量。
南寧風米裝飾設計工程有限公司創始于2009年。專業提供中高端辦公商業空間的完整方案設計以及配套施工服務。風米以高品質的原創設計為核心競爭力,以規范、誠信、高效的整體服務為重要保障。贏得了眾多知名企業的青睞,業務蒸蒸日上。目前已崛起成為廣西辦公商業空間設計領域的中堅力量。
風米服務理念:為客戶提供超越期望的服務,不辱使命。
風米競爭格言:不畏強手,以專業贏市場。
設計理念:只做不一樣的設計。
施工承諾:費用透明,標準化管理,高品質交付