風米動態
邊工作還能邊種菜及運動?這樣的工作環境該人人向往
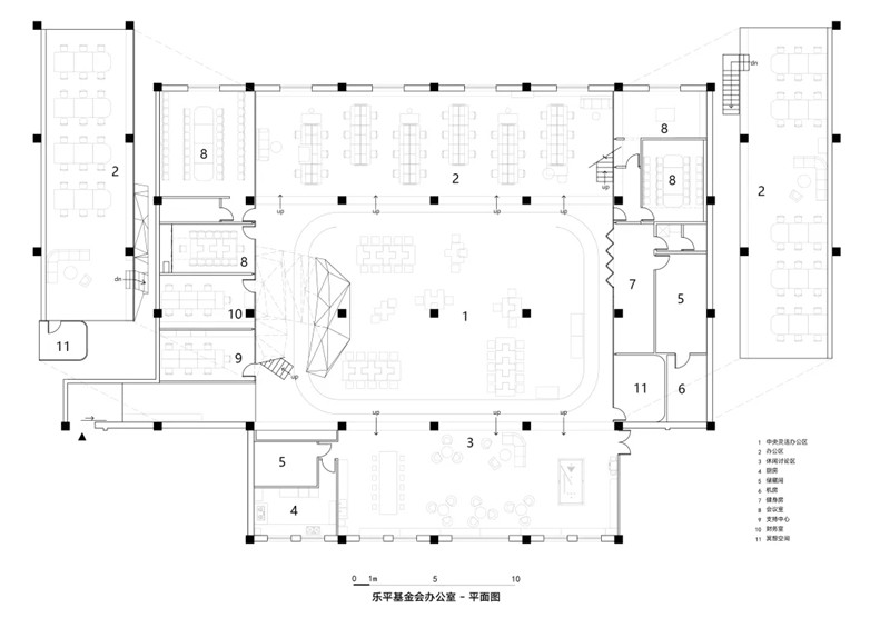
樂平基金會是一家以社會創新著稱的非營利機構。在他們1100㎡的辦公空間中,我們提出的基礎理解是適度的身體活動對大腦有益:劇烈運動通常會影響工作,但適量的活動則反而有益。在工作的同時進行一定程度的輕微運動,健康的效果堪比短暫的劇烈運動。因此設計提供了大量邊工作邊活動的機會,豐富辦公模式,也增加休息的途徑。
這種活動辦公的方式增加了工作中跨領域交流和互動的機會。在這個辦公空間內有5家公司,樂平基金會與其投資的四個子公司,它們分別從事影響力投資,低收入者就業培訓,農業研究,學前教育和小額信貸。活動辦公的方式促發了它們之間更多的交流。
5個公司由一個中間懸掛的“紅環”聯系在一起,紅環上種植蔬菜與植物,下面對應的是跑道。員工在跑道健步的同時可以打電話,也可以與照料植物的同事進行交談。
在辦公室從事園藝活動是一種人們關心環境,主動改善空氣質量的積極行為。對于北京這個全球污染最嚴重的城市來說,空氣質量是非常重要的問題,因此我們把空氣過濾與檢測系統都置入到“紅環”內,實時的空氣數據會在跑道上的屏幕中顯示,工作人員能夠隨時監控并調整室內空氣的質量。
“紅環”和其他水培管內的蔬菜與香草,可直接采食或作為現場午餐材料供應。這樣的活動每天都發生在“紅環”旁的開放式廚房,此區域與咖啡/休息區完全相連,并向整個辦公室開放。
與“紅環”相交的“小山”是另一處混合休閑與工作的場所,坐落在辦公空間的另一端,傾斜的表面適應各種姿勢,中間的小路通往夾層。辦公室內還配有專門的活動空間,包括一個單獨的健身房,冥想空間和會議室。
室內的顏色旨在提醒人們時刻保持活動,變換工作的姿勢。覆蓋墻身和立柱的藍色以60厘米為間隔漸變,每個顏色對應不同的姿勢和活動,如躺、坐、行走和攀爬。
眾產品設計的辦公類家具產品也提供了更多活動工作的可能。
樂平在社會創新領域的工作需要大量不同團隊,部門和公司之間的互動和協作,“眾工位“家具系統在端頭配套設置了迷你廚房和休閑插件,便于形成自發的非正式對話的小型社交空間。“眾工位”的存儲空間設置在工位上方,釋放桌子的下部空間,最大限度地增加可以進行自發討論的空間。
“凹凸桌”這個模塊化的家具可單獨使用,也可組合成各種不同狀態。因為它,使得“紅環”內的空間可作為臨時大型活動空間,也可成為孵化社會企業的靈活空間。“眾行頂”可在空間內靈活移動與展開,結合“凹凸桌”,隨時構建出獨立的會議空間。
項目信息——
客戶:樂平公益基金會
位置:北京
完工日期:2017年12月
主要人員:何哲、沈海恩(James Shen)、臧峰
項目團隊:蔣昊、沙靖海、孔鳴、崔剛健、相未星、林明鍇、許羲、敬臻臻、陳紫薇
項目規模:1100㎡
攝影師:眾建筑、金偉琦
南寧風米裝飾設計工程有限公司創始于2009年。專業提供中高端南寧辦公室裝修,寫字樓裝修,南寧廠房裝修的設計以及配套施工服務。風米以高品質的原創設計為核心競爭力,以規范、誠信、高效的整體服務為重要保障。贏得了眾多知名企業的青睞,業務蒸蒸日上。目前已崛起成為廣西辦公商業空間設計領域的中堅力量。
企業簡介
-
南寧風米裝飾設計工程有限公司創始于2009年。專業提供中高端辦公商業空間的完整方案設計以及配套施工服務。風米以高品質的原創設計為核心競爭力,以規范、誠信、高效的整體服務為重要保障。贏得了眾多知名企業的青睞,業務蒸蒸日上。目前已崛起成為廣西辦公商業空間設計領域的中堅力量。
風米服務理念:為客戶提供超越期望的服務,不辱使命。
風米競爭格言:不畏強手,以專業贏市場。
設計理念:只做不一樣的設計。
施工承諾:費用透明,標準化管理,高品質交付






















